GRE 21 - Rénovation du centre commercial Migros, Grenchen SO
| Années | 2021 |
| Tailles | L |
| Client | Genossenschaft Migros Aare |
| Coût | 21 Mio. |
| Architectes | IPAS Architekten und Planer AG |
| Typologies | Commerce |
| Coopération | wmbp GmbH, Climeco, Balplan AG, Decovert, WAM, Hefi Hess Martignoni, BSB |
| Statuts | Realisé |
| Commission | Direktauftrag |
| © Visualisations | Dunedinarts |
| Team | Egger MichelOtt EricHouda TomasGürber AdrianOzkan Huseyin |
| Lieu | Grenchen SO |
Information
Programme:
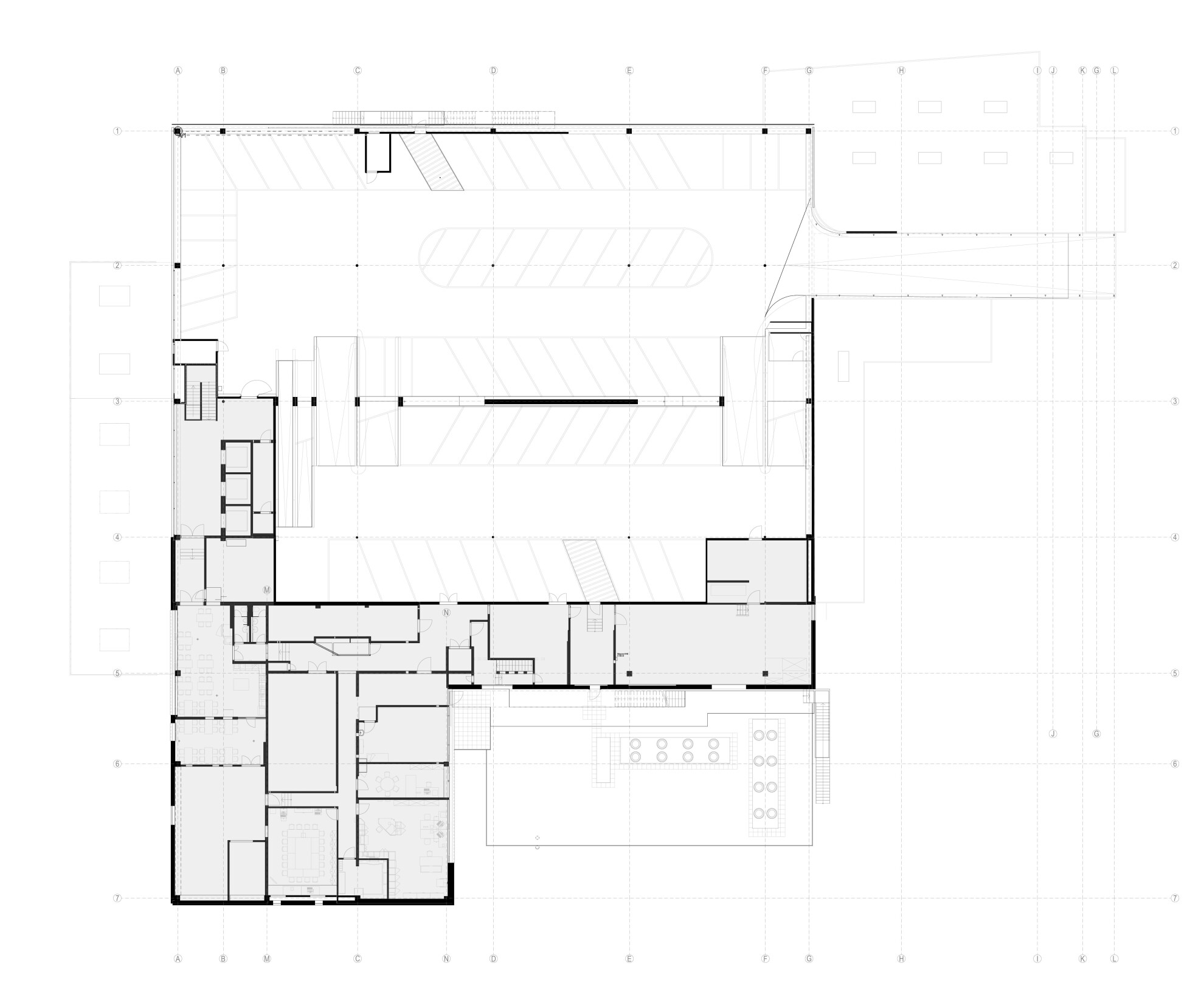
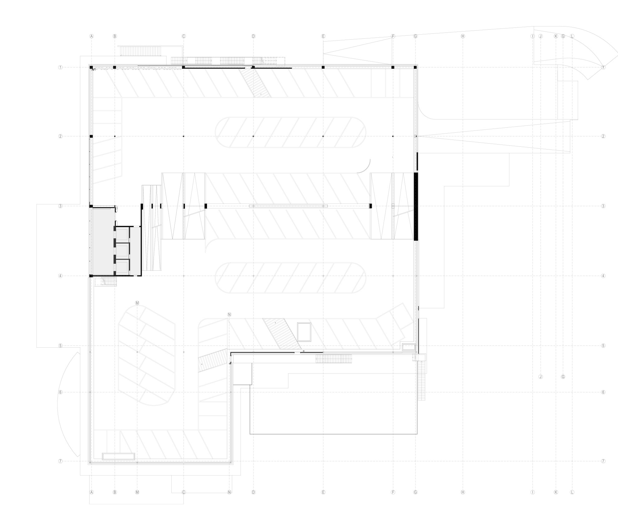
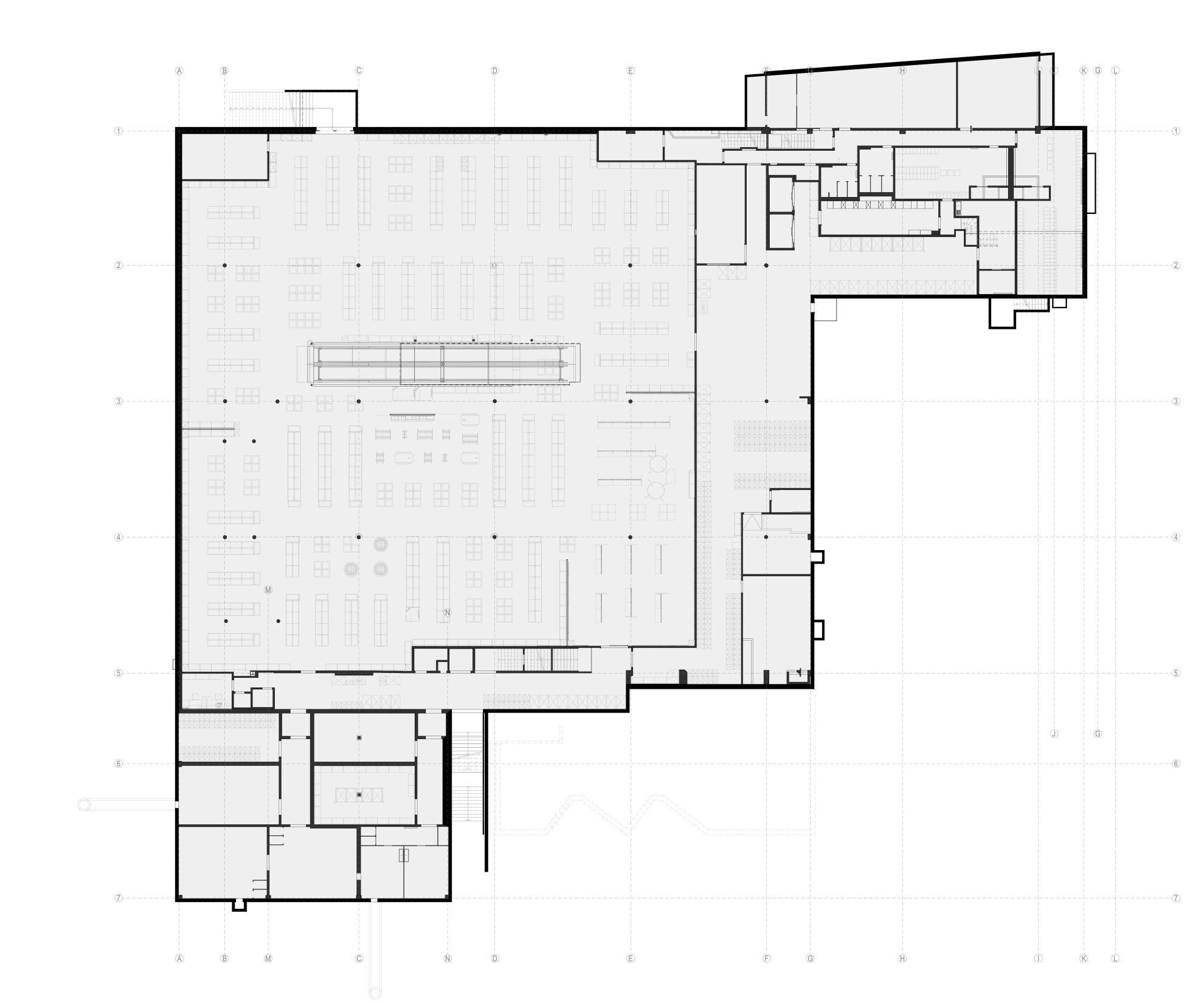
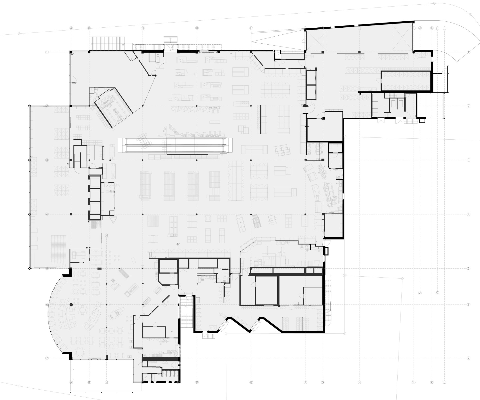
Die Migros plant nach 25 Jahren das Einkaufscenter in Grenchen umfassend zu sanieren. Es besteht aus einem Untergeschoss, einem Erdgeschoss und drei Obergeschossen. Im Untergeschoss und Erdgeschoss befinden sich der Supermarkt, diverse Retailflächen sowie die Anlieferung, Lagerfläche und das Migros Restaurant. In den Obergeschossen befindet sich das Parking.Description:
Gesamtertüchtigung des Gebäudes auf die aktuellen Anforderungen der Erdbebensicherheit, Statik, Minergie und Brandschutz. Bezüglich der Innensanierung erfährt das Untergeschoss und das Erdgeschoss mit der Erneuerung des Supermarktes die grössten Anpassungen. Weiter wird die gesamte Fassade des Gebäudes ersetzt. Eine Herausforderung ist zudem die Sanierung unterlaufendem Betrieb.










