GOR 19 - Les coteaux du lac, Gorgier NE
| Années | 2019 |
| Tailles | M |
| Client | HRS Real Estate |
| Architectes | IPAS Architectes et Planificateurs SA |
| Typologies | Habitation |
| Statuts | Realisé |
| Commission | Concours - 1er prix |
| Team | Ott EricEgger MichelMarconato LoïcDesaules MichaelPais SabrinaGurtner BenjaminSacchetti LorisDa Cunha LilianaRuegsegger Amanda |
| Lieu | Gorgier NE |
Information
Programme:
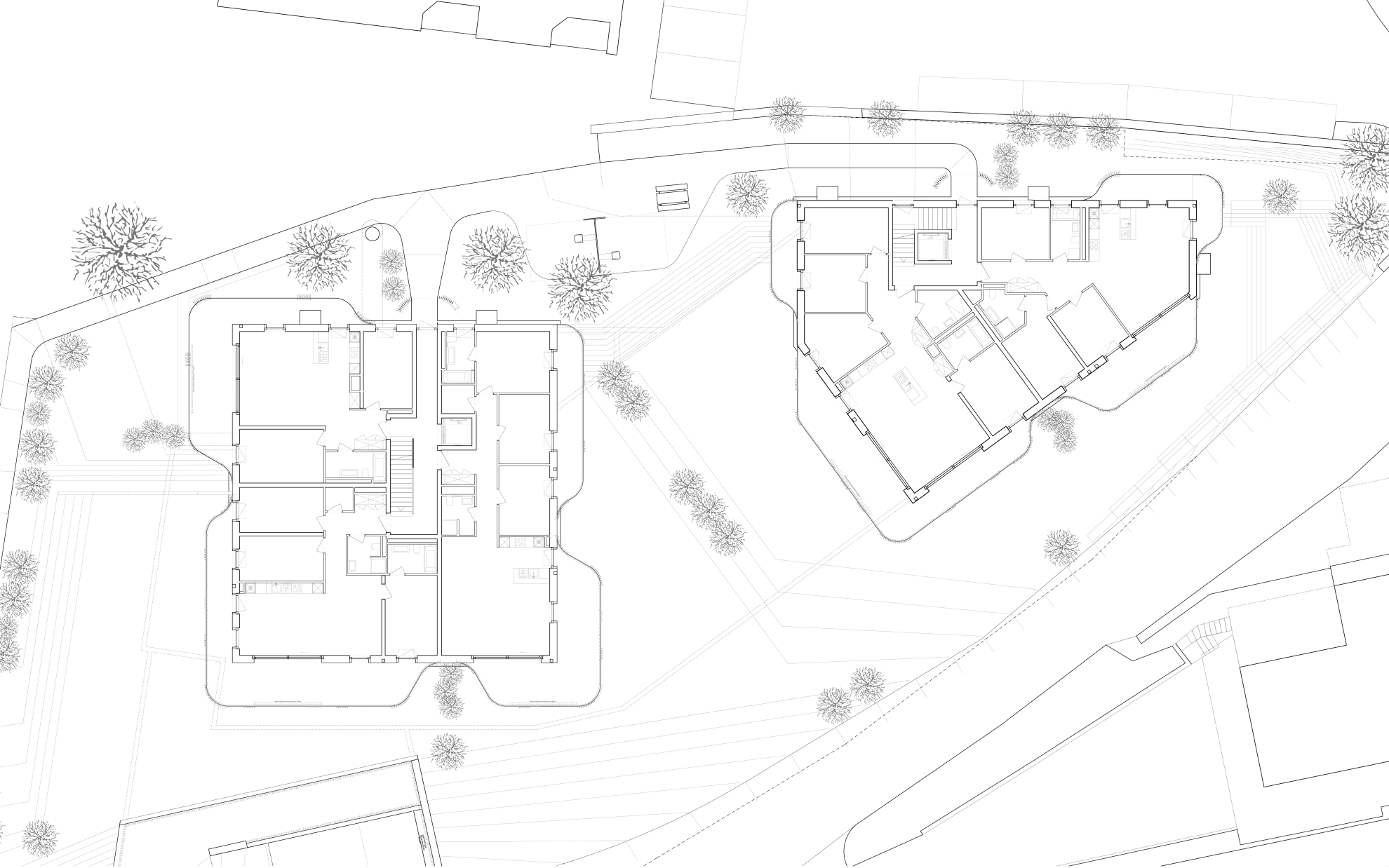
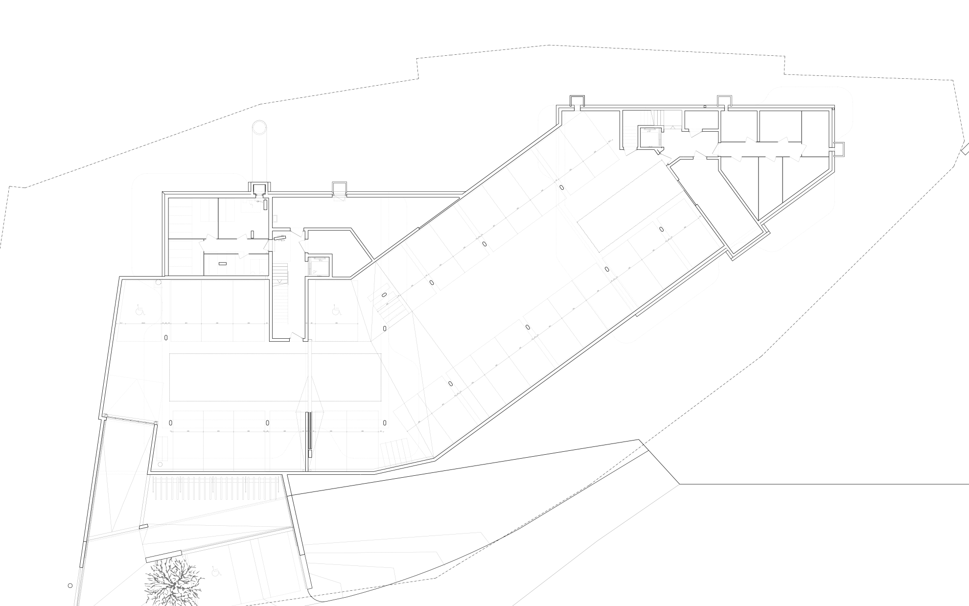
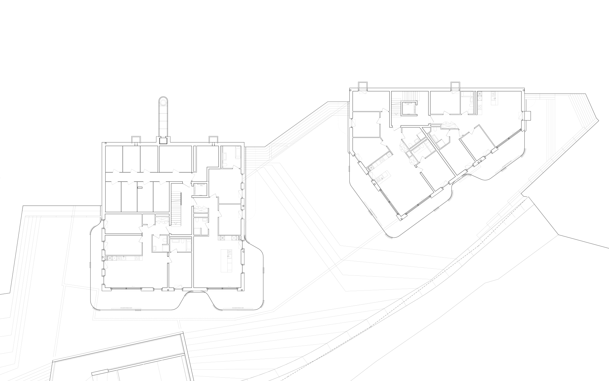
Les contraintes réglementaires présentes sur le site suggèrent l’implantation sous la forme de deux volumes. Cette intégration permet de dégager des percées aux habitants voisins, tout en exploitant au maximum le potentiel économique du site. Ces deux bâtiments contiennent au total 19 appartements en PPE, respectivement huit et onze appartements. Selon les choix du maitre d’ouvrage, les typologies disponibles varient du 3.5p au 5.5p. selon la répartition suivante : 5 x 3.5p. / 11 x 4.5p. / 3 x 5.5p. Un étage de parking souterrain relie les deux corps de bâtiment. Il intègre les locaux techniques, ainsi que 33 places de stationnement au bénéfice des propriétaires. En sus, 3 places de parking visiteurs sont prévus le long de la rue, à côté de l’entrée du parking. Une place de jeux est également prévue entre les deux bâtiments. Elle sera conçue comme un espace de rencontre pour les habitants du quartier. Les exigences acoustiques sont la contrainte principale du site. Afin de limiter les nuisances sonores de la ligne CFF dans les appartements, de généreux balcons filent autour des bâtiments. Ces « pièces de vie extérieures » créent ainsi un espace « tampon » entre l’intérieur et l’environnement. Ainsi, les balcons deviennent la façade qui caractérise le bâtiment. Ces immeubles, labellisés « Minergie », sont équipés de pompes à chaleur et de panneaux solaires en toiture. L’intégration d’un éco point sur la parcelle a également été réalisée sur demande de la commune.Description:
Sur ce site, les Alpes sont le décor, le lac la scène, la forêt le voisin de tribune. Pour tirer profit de ces charmes, il faut habiter perché, chercher les feuillages pour trouver la quiétude de celui qui prend de l’altitude, offrir la vue à celui qui veut s’évader. L’architecture proposée est mimétique, elle reprend l’attitude des cèdres majestueux qui préservent le lieu par une empreinte minimum au sol et un déploiement de longues branches horizontales. Celui qui vient vivre à Gorgier habite une maison individuelle, un habitat intermédiaire, mais pas un locatif. Ce que nous offrons, c’est une architecture arboricole groupée, bourgeonnée de jardins suspendus qui occupent les airs, proposent cet entre-deux habité, ce champ sémantique qui exprime le repos ; qui n’a pas rêver de s’allonger un moment sur la branche d’un arbre, sans le souci des ennuis et du bruit de la ville ?
























